当前位置:首页>研招网>《南昌市2026年初中毕业升学体育与健康考试现场测试项目规则与评分表》发布!

《南昌市2026年初中毕业升学体育与健康考试现场测试项目规则与评分表》发布!

  • 2026-05-13 21:46:33
《南昌市2026年初中毕业升学体育与健康考试现场测试项目规则与评分表》发布!

根据江西省教育厅相关文件及南昌市教育局关于印发《南昌市初中学业水平考试体育与健康评价改革方案》的通知(洪教办字〔2023〕9号)文件精神,我市2026年初中毕业升学体育与健康考试满分60分由过程测评15分和现场测试45分构成。现场测试项目由耐力跑必考+素质类选考+技能类选考组成,其中,耐力跑必考项目为1000米跑(男)/800米跑(女);素质类选考项目从50米跑、立定跳远、一分钟跳绳、引体向上(男)/一分钟仰卧起坐(女)中四选一;技能类选考项目从篮球、足球、排球、羽毛球、乒乓球、游泳中六选一。

南昌市2026年初中毕业升学体育与健康考试现场测试45分,必考项目耐力跑占20分,素质类和技能类两个选考项目各占12.5分。

初中毕业升学体育与健康考试现场测试,严格执行《国家学生体质健康标准(2014 年修订)》关于初中三年级相关项目的评分标准。对于跳绳、篮球运球、足球运球、排球垫球等选考项目,依据教育部、国家体育总局2007年颁布实施的《国家学生体质健康标准》相关评分标准进行评分。对于未列入《国家学生体质健康标准》的乒乓球、羽毛球、游泳为技能类选考项目,按南昌市教育局2025年3月 10日关于印发《南昌市体育与健康学业水平考试新增选考项目考试标准及篮球运球项目考试标准调整实施办法》的通知执行。

(  南昌市2026年初中毕业升学体育与健康考试现场测试项目规则  )
01
1000米跑和800米跑

1)场地设置及器材规格

场地设置在封闭的、有6条及以上环形跑道的400米田径场上,考试所需的标志线清晰,起点线和终点线必须设置明显的标志物。

2)测试方法

引导员以组为单位将考生带至考试场地进行人脸识别身份确认(或手持身份证和检录表照片与本人相貌比对)、检录。引导员将考生按小组带至起点,每组考生人数不超过30人,考生按要求穿号码衣,测试员逐一核对考生号码。同时对考生进行人脸识别,并与号码衣号码绑定,上道后再次通过人脸识别技术对整组第1号、最后一号及中间若干号考生进行身份抽检,确认准确无误后进入考试程序。

采用站立式起跑,弧形起跑线出发,起跑后不分跑道;遵循右侧超越的田径规则。在考试过程中考生无犯规现象,记录成绩有效。每个考生只有一次考试机会。

考生应在7分钟之内跑完全程,时间按分、秒记录,不足1秒不计入成绩。7分钟内未跑完全程者,引导员或其他工作人员将考生带离跑道,该生该项成绩标记“超时”,成绩为0分。考试犯规时,当次成绩无效。

3)犯规行为

发令前,脚触及或越过起跑线;跑进中踏进跑道最左侧跑道线;跑进中推、拉、阻挡他人跑进;跑进中由他人领跑,或借助他人的力量跑进。

考试过程中,故意损坏衣物或其他考试设备。

4)注意事项

考生考试时穿胶底运动鞋,不得穿铁钉专业跑鞋或皮鞋、凉鞋等。

02
50米跑

1)场地设置及器材规格

跑道若干条,要有足够的缓冲余地,地面为平坦的泥土地或塑胶地面,考试所需的标志线清晰,并在相应道次上贴“号码贴”进行标识。起点线和终点线应该设置明显的标志。系统应符合田径竞赛规则要求。

2)测试方法

引导员以组为单位将考生带至考试场地进行人脸识别身份确认(或手持身份证和检录表照片与本人相貌比对)、检录。考生上道后进行身份确认复核。考生站在起跑线后准备,听设备提示声音起跑。采用站立式起跑。仪器发出提示音(各就位…预备…枪声提示音),考生起跑。

到达终点后按照道次顺序确认成绩。

考生只有一次考试机会。考生在测试中因他人犯规影响或意外摔倒,经主考同意后,只可在当日进行一次补试。仍然犯规者,该项成绩计0分。

3)犯规行为

考试过程中抢跑、串道、影响他人等。

4)注意事项

考生考试时要求穿胶底运动鞋,不得穿铁钉的专业跑鞋、皮鞋、凉鞋等。

03
立定跳远

1)场地设置及器材规格

场地器材要求:考试设备要安排在平坦地面,专用立定跳远测试仪。

2)测试方法

引导员以组为单位将考生带至考试场地进行人脸识别身份确认(或手持身份证和检录表照片与本人相貌比对)、检录。考生站立在起跳线后准备考试,两脚原地同时起跳,落地点必须在测试区域内,以身体触地部位离起跳线最近点为考试成绩,不得有助跑、垫步跳等动作。

连续测试3次,电子仪器自动择取最好一次成绩记录储存。

考生考试时犯规,当次成绩无效;3次考试均犯规无成绩者,该项成绩计0分。

3)犯规行为

起跳时脚触碰或踩踏起跳线、助跑、垫步或连跳。

测试完成后后退或从侧面出感应区,判定犯规,所跳成绩无效。

4)注意事项

单次起跳落地后必须往前走出测试区域,不得往后退,否则可能影响考试成绩。

04
一分钟跳绳

1)场地设置及器材规格

考试场地设在平整的地面上,采用智能仪器进行测试,考生以组为单位在布置好的场地内测试,考试跳绳为专用跳绳(手柄无计时计数芯片),不允许考生使用自带跳绳,每组考生人数不超过20人。

2)测试方法

引导员以组为单位将考生带至考试场地进行人脸识别身份确认(或手持身份证和检录表照片与本人相貌比对)、检录。考生在场地就位后再次进行人脸识别身份复核。考生需使用考试现场专用跳绳,引导员将考生按组带至跳绳场地,考生按要求站至带有标识的指定区域,拿取相对应的跳绳设备,考生将跳绳长短调至适宜长度,系好鞋带准备完毕后,测试员逐一核对考生号码,确认准确无误后进入考试程序。

听从智慧体测终端“3-2-1-砰”的提示音进行考试,从语音“peng”即开始自动计数。考生在自己的测试区域双脚起跳,每跳一次且摇绳一周为一次有效,考生在标识的区域内跳绳,在最后10秒时会由体测终端语音提醒,1分钟时间结束,仪器自动停止计数。

考生只有一次考试机会。如考生在考试过程中被他人影响等不可抗因素得到监考老师确认后,可申请一次补跳机会。

考试结束后,考生在电子显示屏幕上查看成绩。

考试犯规时,当次成绩无效。

3)犯规行为

一跳多摇、单脚跳及一跳一垫步均判为犯规;跳出规定的区域,影响到他人。 

4)注意事项

测试过程中跳绳拌脚,除该次不计数外,应继续进行。

考试结束后,考生将跳绳轻放至指定位置。

考试跳绳现场已提供,考生不得自带跳绳进入考场。

05
引体向上(男)

1)场地设置及器材规格

在高单杠上进行,考试所用单杠符合相关要求;根据实际情况,可分别设置高度不同的场地,供考生选择;单杠下的地面材质铺设必须充分考虑考生落地时的安全,可选用松软的沙子、体操垫等。

2)测试方法

引导员以组为单位将考生带至考试场地进行人脸识别身份确认(或手持身份证和检录表照片与本人相貌比对)、检录。考生在规定区域内按测试顺序排成一列纵队。考生听到报号后,走到杠下跳起,双手正握杠,两手约与肩同宽成直臂悬垂,身体呈静止状态后,开始做第一次引体向上的动作;屈臂向上引体至下颏超过横杠上沿,恢复直臂悬垂后为完成一次;动作未达到此规格者,不计次数;考试时间从双手握杠开始,到双手离杠结束,考试自动结束。考生的成绩按成功完成的引体次数计取。每个考生只有一次考试机会。

考试时,考生出现犯规行为,不计取犯规时的次数,但可以继续考试。

3)犯规行为

没有从静止动作开始做动作;两次动作之间,手臂没有充分伸直;动作完成时,下颏未超过杠面。

4)注意事项

受试者应双手正握单杠,待身体静止后开始测试。

引体向上时,身体不得做过大的摆动,也不得借助其他附加动作撑起。

06
1分钟仰卧起坐(女)

1)场地设置及器材规格

场地设置在平整的地面上,考生在仪器设备上完成测试。

2)测试方法

引导员以组为单位将考生带至考试场地进行人脸识别身份确认(或手持身份证和检录表照片与本人相貌比对)、检录。考生仰卧在测试仪器上,双手五指交叉贴于头后,同时,两臂打开,手背及手臂均触垫;双脚放稳、屈膝,大小腿呈直角,两腿可稍分开;起坐时,双肘必须触及或超越两膝;仰卧时,两肩胛骨必须触垫。测试过程中不能外人辅助。计取考生一分钟内完成的符合标准的动作次数。每位考生只测试一次。

考生出现犯规行为,犯规时所做的仰卧起坐不计数,但可以继续考试。考试犯规时,当次成绩无效。

3)犯规行为

起坐时,双肘未触及或未超越两膝;仰卧时,肩胛骨未触垫;

考试过程中,臀部离垫。

4)注意事项

受试者借用肘部撑垫或臀部起落的力量起坐时,该次不计数。

受试者双脚必须放于垫上。

07
篮球运球

(1)场地器材规格及设置要求

场地设置在球场内或者平整的塑胶场地上。设置要求:长20米,宽7米。起点线前5米处开始设置标志杆,共设5排,每排2根;各标志杆之间相距3米,同排的两根标志杆底座中心点之间相距0.5米,距同侧边线3米。起点线中间1米处为出发区域。

设置方式如图所示:

篮球测试场地设置示意图

标志杆高不低于1.2米,考试用球的规格为6号篮球

(其重量为510-567g,周长为724-737mm),球内气压符合篮球竞赛规则要求。

2)测试方法

引导员以组为单位将考生带至考试场地进行人脸识别身份确认(或手持身份证和检录表照片与本人相貌比对)、检录。考生听到报号后,持球站立在起(终)点线的出发位置,并做好出发准备。发令后,考生两脚方可移动,并按图中箭头所示方向运球依次过杆。运球过程中,若考生暂时失去对球的控制,但球未出测试场地,考生可自行捡回,在对球失去控制处继续运球,计时不停止。考生与球均返回起(终)点线,计时停止。每人测试两次,记录较好成绩。

测试成绩以秒为单位记录,精确到小数点后1位(0.1秒),小数点后第2位数非“0”时进1。

考生考试时犯规,当次成绩无效;两次考试均犯规无成绩者,只可增加一次机会;仍然犯规者,该项成绩计0分。

3)犯规行为

未从指定区域出发;出发时抢跑;运球过程中双手同时触球;运球高度超过考生肩部;膝盖以下身体部位触球;“翻腕”等其他规则不允许的违例行为;漏绕标志杆;碰倒标志杆;

4)注意事项

考试期间,人或球出测试区域;通过终点时人球分离(考生到达终点的瞬间,必须单手或双手触球)。

08
足球运球

1)场地器材规格及设置要求

场地设置在田径场中部的平整场地面或独立的足球场上,表面为天然或人工草坪(不能为光滑的硬地),各场地之间相互独立,避免考试过程中互相干扰。设置要求:长30米,宽10米,场地四周设置明显的标志线。起点线前5米处开始设置标志杆,标志杆与两侧边线相距5米,共设5根,各杆之间相距5米。起点线中间1米处为考生出发区域。设置方式如图所示:

标志杆高不低于1.2米,考试用球的规格为5号足球(其重量为396-453g,周长为680-710mm),球内气压符合足球竞赛规则要求。

2)测试方法

引导员以组为单位将考生带至考试场地进行人脸识别身份确认(或手持身份证和检录表照片与本人相貌比对)、检录。考生听到报号后,将球运至起点线后的出发区域并做好出发准备。发令后,考生运球向前,依次绕杆;球通过最后一个标志杆后,考生至少触球一次,运球通过终点线;人与球均越过终点线后,计时停止。每人测试两次,记录较好成绩。

以秒为单位记录测试成绩,精确到小数点后1位(0.1秒),小数点后第2位数非“0”时进1。

考试犯规时,当次成绩无效;两次均犯规无成绩者,只可增加一次机会;仍然犯规者,考生该项成绩计0分。

3)犯规行为

未从指定区域出发;出发时抢跑;手球;漏绕标志杆;碰倒标志杆;球过最后一个标志杆后,到达终点前,脚未触球;

4)注意事项

注意要完成全程路线;测试期间,人或球出测试区域。

09
排球垫球

1)场地器材规格及设置要求

场地设置在地面平坦、坚实的地面上,鼓励有条件的考点把场地设置在体育馆内。设置要求:长和宽均为3米,场地四周设置明显的标志线;场地外围设置判断垫球高度的标志物,标志物在地面的垂直投影与同侧标志线相距0.5米;标志物设定的高度要综合考虑仪器设备的计数方法、排球直径等影响因素,保证高度符合要求;标志物设置的其他注意事项根据所选仪器设备的实际确定。男生和女生的测试场地要分别设置。

考试用球为排球(不能使用软式排球),其重量为230-270g,周长为650-670mm,球内气压符合排球竞赛规则要求。

2)测试方法

引导员以组为单位将考生带至考试场地进行人脸识别身份确认(或手持身份证和检录表照片与本人相貌比对)、检录。在规定区域内按测试顺序排成一列纵队。

考生听到报号后,进入测试区域,原地将球抛起,排球离手后计时开始,个人连续正面双手垫球,要求手型正确、击球部位准确、达到规定的高度。

每次测试时间不超过1分钟。每人测试两次,记录成绩较好的一次。

垫球未超时者,球落地或出现犯规行为,该次测试结束;超时者,到规定时间后,该次测试自动结束。男生垫球的高度(从地面起至球的底部)不低于2.24米,女生不低于2.00米。测试时,方法正确,高度符合要求的垫球方能计数。计垫球的个数。

3)犯规行为

采用传球等方式触球;脚踩标志线或出测试区域等。

4)注意事项

考生考试时,出现球触及标志物等情况,出现犯规行为者,当次测试结束。

10
乒乓球

(1)场地器材

场地测试场地长不小于14米、宽不小于7米。相邻球台之间须用不低于0.75米的挡板隔开。

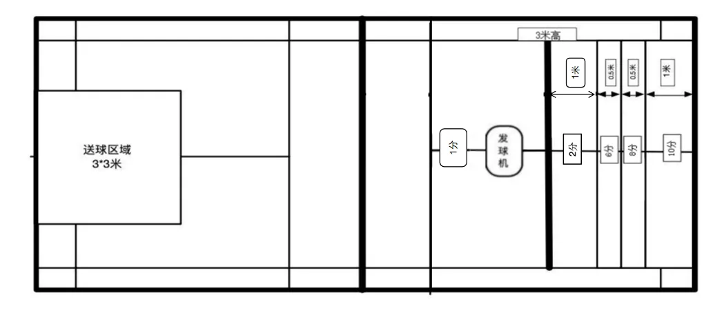
器材发球机,出球速度、频率可调,出球角度可调节范围±30度,储球容量不小于100个,可发上旋球,能够定点发球和随机发球,集球网自动收集并循环出球,满足考试要求;乒乓球,直径40毫米,重量2.7克;乒乓球台(附网架和球网),符合QB/T 2700;配备捡球器;球拍考生自备,考点提供备用;鼓励探索设置智能计分系统。

(2)测试方法及要求

1.引导员以组为单位将考生带至考试场地进行人脸识别身份确认(或手持身份证和检录表照片与本人相貌比对)、检录。在规定区域内按测试顺序排成一列纵队。

考生听到报号后,进入测试区域。考试开始,由乒乓球发球机随机向考生连续供球30个,频率为40个球(±1)/分钟;球过网上缘8厘米左右高度,供球到考生球台左、右两侧1/3区域内的中线附近区间内(距球台端线约30-55厘米)。考生合理运用乒乓球击球技术,将球回击到对面(发球机侧)台面。回击球第一落点在发球机侧台面内为有效击球,计算为有效击球次数。

2.每名考生连续击球30个,且只进行一次测试。

3.因发球机原因造成的考生失误,允许重新测试。

(3)犯规行为

非执拍手触台:比赛进行中,非执拍手触碰台面,或身体倚靠球台导致台面移动,判失分。

连击:同一球员连续两次触球,如球拍和手先后触球,或球拍两次击球,判失分。

(4)注意事项

考生需自备球拍,球拍大小、形状不限,但两面均应无光泽,有胶皮,颜色一面为黑色,另一面为与黑色和球的颜色明显不同的明亮颜色,且需符合国际乒联比赛要求。

应穿着轻便的运动服和防滑运动鞋,不得穿钉鞋、皮鞋、塑料凉鞋等。

11
羽毛球

(1)场地器材

场地:13.4米×5.18米室内标准羽毛球单打场地,在距后场端线前3米处,设置一高3米标志线,距后场端线前1米、1.5米、2米地面处各设一标志线。发球机放置在一侧半场前发球线后方1.5米中线位置。发球机送球落地区域为发球机异侧半场底线中点向两侧各1.5米、向内3米所构成的3米×3米的正方形区域。

器材:发球机,出球速度、出球频率可调,储球容量不小于200支,定点发球偏差距离不超过50厘米,满足考试要求;测试用球为77号;3米标志杆2根,5.18米标志线1条,3米、5.18米标志带各3条;标准网柱(附网),符合GB/T 19851;球拍考生自备,考点提供备用。

(2)测试方法及要求

1.引导员以组为单位将考生带至考试场地进行人脸识别身份确认(或手持身份证和检录表照片与本人相貌比对)、检录。在规定区域内按测试顺序排成一列纵队。

考生听到报号后,进入测试区域。考试开始,由羽毛球发球机送球,频率为20个球/分钟,以高远球发至规定区域内。考生以高远球将球击回对面单打场地,越过空中3米标志线。

2.每名考生连续击球20个,选取得分最高的15个球作为有效计分球,且只进行一次测试。

3.因机器供球偏离规定区域,考生可以放弃本次击球,本球无效,不计算击球次数;如考生击球,该球有效,继续考试。

4.当无效供球达到三次及以上时,允许重新测试。

5.因考生个人原因在测试过程中停止击球,测试完成后,只记录得分区内羽球个数,作为最终成绩。

(3)犯规行为

连击:一次击球过程中球拍多次接触球属于违例。

球出界:击出的球落在有效区域外,如出了边线、底线等,判为出界,属于犯规。

(4)注意事项

考试中需将球击至对方后场有效区域(单打底线与边线之间)。

12
50米游泳

(1)场地器材

场地:在50米标准游泳池内进行,设置出发召回线、仰泳转身标志线和泳道分隔线,水质符合国家标准。

器材:半自动计时系统(人工计时备用),测试误差±0.01秒,具备数据传输和安全保护功能,可现场数据导出,电子屏幕显示成绩,满足考试要求;配备秒表、哨子等;按照GB 19079.1配备救生员和救生器材。

(2)测试方法与要求

引导员以组为单位将考生带至考试场地进行人脸识别身份确认(或手持身份证和检录表照片与本人相貌比对)、检录。在规定区域内按测试顺序排成一列纵队。

考生听到报号后,进入测试区域。

1.出发——从起点处,在水中手扶起点池壁开始;结束——手触终点池壁即到达终点。测试时当场报出成绩并予以登记。

2.考生须自备质量合格的游泳专用运动服(含泳帽和护目镜)方能参加考试;

3.考生可采用任何一种泳姿(允许交替运用)游完规定的距离。

3)犯规行为

考生必须在规定的泳道内游完全程,途中不得在池底站立或在池底行走、拉泳道线和干扰别人游进;违反者,经2次劝告后仍不改正者,不得参加考试,考试结果计0分。

(4)注意事项

不得使用或穿戴任何有利于速度、浮力、耐力的器具(如手蹼、脚蹼等),可戴护目镜。

当考生体力不支或身体原因无法完成测试时,可停止考试,呼叫救生员。

南昌市2026年初中毕业升学体育与健康考试现场测试项目评分表(男)
南昌市2026年初中毕业升学体育与健康考试现场测试项目评分表(女)
来源:南昌市教育考试院

最新文章

随机文章

基本 文件 流程 错误 SQL 调试
  1. 请求信息 : 2026-05-17 00:11:29 HTTP/2.0 GET : https://b.mffb.com.cn/a/477662.html
  2. 运行时间 : 0.373257s [ 吞吐率:2.68req/s ] 内存消耗:4,598.20kb 文件加载:140
  3. 缓存信息 : 0 reads,0 writes
  4. 会话信息 : SESSION_ID=71ea63492c8e5345d262fba60472890a
  1. /yingpanguazai/ssd/ssd1/www/b.mffb.com.cn/public/index.php ( 0.79 KB )
  2. /yingpanguazai/ssd/ssd1/www/b.mffb.com.cn/vendor/autoload.php ( 0.17 KB )
  3. /yingpanguazai/ssd/ssd1/www/b.mffb.com.cn/vendor/composer/autoload_real.php ( 2.49 KB )
  4. /yingpanguazai/ssd/ssd1/www/b.mffb.com.cn/vendor/composer/platform_check.php ( 0.90 KB )
  5. /yingpanguazai/ssd/ssd1/www/b.mffb.com.cn/vendor/composer/ClassLoader.php ( 14.03 KB )
  6. /yingpanguazai/ssd/ssd1/www/b.mffb.com.cn/vendor/composer/autoload_static.php ( 4.90 KB )
  7. /yingpanguazai/ssd/ssd1/www/b.mffb.com.cn/vendor/topthink/think-helper/src/helper.php ( 8.34 KB )
  8. /yingpanguazai/ssd/ssd1/www/b.mffb.com.cn/vendor/topthink/think-validate/src/helper.php ( 2.19 KB )
  9. /yingpanguazai/ssd/ssd1/www/b.mffb.com.cn/vendor/topthink/think-orm/src/helper.php ( 1.47 KB )
  10. /yingpanguazai/ssd/ssd1/www/b.mffb.com.cn/vendor/topthink/think-orm/stubs/load_stubs.php ( 0.16 KB )
  11. /yingpanguazai/ssd/ssd1/www/b.mffb.com.cn/vendor/topthink/framework/src/think/Exception.php ( 1.69 KB )
  12. /yingpanguazai/ssd/ssd1/www/b.mffb.com.cn/vendor/topthink/think-container/src/Facade.php ( 2.71 KB )
  13. /yingpanguazai/ssd/ssd1/www/b.mffb.com.cn/vendor/symfony/deprecation-contracts/function.php ( 0.99 KB )
  14. /yingpanguazai/ssd/ssd1/www/b.mffb.com.cn/vendor/symfony/polyfill-mbstring/bootstrap.php ( 8.26 KB )
  15. /yingpanguazai/ssd/ssd1/www/b.mffb.com.cn/vendor/symfony/polyfill-mbstring/bootstrap80.php ( 9.78 KB )
  16. /yingpanguazai/ssd/ssd1/www/b.mffb.com.cn/vendor/symfony/var-dumper/Resources/functions/dump.php ( 1.49 KB )
  17. /yingpanguazai/ssd/ssd1/www/b.mffb.com.cn/vendor/topthink/think-dumper/src/helper.php ( 0.18 KB )
  18. /yingpanguazai/ssd/ssd1/www/b.mffb.com.cn/vendor/symfony/var-dumper/VarDumper.php ( 4.30 KB )
  19. /yingpanguazai/ssd/ssd1/www/b.mffb.com.cn/vendor/topthink/framework/src/think/App.php ( 15.30 KB )
  20. /yingpanguazai/ssd/ssd1/www/b.mffb.com.cn/vendor/topthink/think-container/src/Container.php ( 15.76 KB )
  21. /yingpanguazai/ssd/ssd1/www/b.mffb.com.cn/vendor/psr/container/src/ContainerInterface.php ( 1.02 KB )
  22. /yingpanguazai/ssd/ssd1/www/b.mffb.com.cn/app/provider.php ( 0.19 KB )
  23. /yingpanguazai/ssd/ssd1/www/b.mffb.com.cn/vendor/topthink/framework/src/think/Http.php ( 6.04 KB )
  24. /yingpanguazai/ssd/ssd1/www/b.mffb.com.cn/vendor/topthink/think-helper/src/helper/Str.php ( 7.29 KB )
  25. /yingpanguazai/ssd/ssd1/www/b.mffb.com.cn/vendor/topthink/framework/src/think/Env.php ( 4.68 KB )
  26. /yingpanguazai/ssd/ssd1/www/b.mffb.com.cn/app/common.php ( 0.03 KB )
  27. /yingpanguazai/ssd/ssd1/www/b.mffb.com.cn/vendor/topthink/framework/src/helper.php ( 18.78 KB )
  28. /yingpanguazai/ssd/ssd1/www/b.mffb.com.cn/vendor/topthink/framework/src/think/Config.php ( 5.54 KB )
  29. /yingpanguazai/ssd/ssd1/www/b.mffb.com.cn/config/app.php ( 0.95 KB )
  30. /yingpanguazai/ssd/ssd1/www/b.mffb.com.cn/config/cache.php ( 0.78 KB )
  31. /yingpanguazai/ssd/ssd1/www/b.mffb.com.cn/config/console.php ( 0.23 KB )
  32. /yingpanguazai/ssd/ssd1/www/b.mffb.com.cn/config/cookie.php ( 0.56 KB )
  33. /yingpanguazai/ssd/ssd1/www/b.mffb.com.cn/config/database.php ( 2.48 KB )
  34. /yingpanguazai/ssd/ssd1/www/b.mffb.com.cn/vendor/topthink/framework/src/think/facade/Env.php ( 1.67 KB )
  35. /yingpanguazai/ssd/ssd1/www/b.mffb.com.cn/config/filesystem.php ( 0.61 KB )
  36. /yingpanguazai/ssd/ssd1/www/b.mffb.com.cn/config/lang.php ( 0.91 KB )
  37. /yingpanguazai/ssd/ssd1/www/b.mffb.com.cn/config/log.php ( 1.35 KB )
  38. /yingpanguazai/ssd/ssd1/www/b.mffb.com.cn/config/middleware.php ( 0.19 KB )
  39. /yingpanguazai/ssd/ssd1/www/b.mffb.com.cn/config/route.php ( 1.89 KB )
  40. /yingpanguazai/ssd/ssd1/www/b.mffb.com.cn/config/session.php ( 0.57 KB )
  41. /yingpanguazai/ssd/ssd1/www/b.mffb.com.cn/config/trace.php ( 0.34 KB )
  42. /yingpanguazai/ssd/ssd1/www/b.mffb.com.cn/config/view.php ( 0.82 KB )
  43. /yingpanguazai/ssd/ssd1/www/b.mffb.com.cn/app/event.php ( 0.25 KB )
  44. /yingpanguazai/ssd/ssd1/www/b.mffb.com.cn/vendor/topthink/framework/src/think/Event.php ( 7.67 KB )
  45. /yingpanguazai/ssd/ssd1/www/b.mffb.com.cn/app/service.php ( 0.13 KB )
  46. /yingpanguazai/ssd/ssd1/www/b.mffb.com.cn/app/AppService.php ( 0.26 KB )
  47. /yingpanguazai/ssd/ssd1/www/b.mffb.com.cn/vendor/topthink/framework/src/think/Service.php ( 1.64 KB )
  48. /yingpanguazai/ssd/ssd1/www/b.mffb.com.cn/vendor/topthink/framework/src/think/Lang.php ( 7.35 KB )
  49. /yingpanguazai/ssd/ssd1/www/b.mffb.com.cn/vendor/topthink/framework/src/lang/zh-cn.php ( 13.70 KB )
  50. /yingpanguazai/ssd/ssd1/www/b.mffb.com.cn/vendor/topthink/framework/src/think/initializer/Error.php ( 3.31 KB )
  51. /yingpanguazai/ssd/ssd1/www/b.mffb.com.cn/vendor/topthink/framework/src/think/initializer/RegisterService.php ( 1.33 KB )
  52. /yingpanguazai/ssd/ssd1/www/b.mffb.com.cn/vendor/services.php ( 0.14 KB )
  53. /yingpanguazai/ssd/ssd1/www/b.mffb.com.cn/vendor/topthink/framework/src/think/service/PaginatorService.php ( 1.52 KB )
  54. /yingpanguazai/ssd/ssd1/www/b.mffb.com.cn/vendor/topthink/framework/src/think/service/ValidateService.php ( 0.99 KB )
  55. /yingpanguazai/ssd/ssd1/www/b.mffb.com.cn/vendor/topthink/framework/src/think/service/ModelService.php ( 2.04 KB )
  56. /yingpanguazai/ssd/ssd1/www/b.mffb.com.cn/vendor/topthink/think-trace/src/Service.php ( 0.77 KB )
  57. /yingpanguazai/ssd/ssd1/www/b.mffb.com.cn/vendor/topthink/framework/src/think/Middleware.php ( 6.72 KB )
  58. /yingpanguazai/ssd/ssd1/www/b.mffb.com.cn/vendor/topthink/framework/src/think/initializer/BootService.php ( 0.77 KB )
  59. /yingpanguazai/ssd/ssd1/www/b.mffb.com.cn/vendor/topthink/think-orm/src/Paginator.php ( 11.86 KB )
  60. /yingpanguazai/ssd/ssd1/www/b.mffb.com.cn/vendor/topthink/think-validate/src/Validate.php ( 63.20 KB )
  61. /yingpanguazai/ssd/ssd1/www/b.mffb.com.cn/vendor/topthink/think-orm/src/Model.php ( 23.55 KB )
  62. /yingpanguazai/ssd/ssd1/www/b.mffb.com.cn/vendor/topthink/think-orm/src/model/concern/Attribute.php ( 21.05 KB )
  63. /yingpanguazai/ssd/ssd1/www/b.mffb.com.cn/vendor/topthink/think-orm/src/model/concern/AutoWriteData.php ( 4.21 KB )
  64. /yingpanguazai/ssd/ssd1/www/b.mffb.com.cn/vendor/topthink/think-orm/src/model/concern/Conversion.php ( 6.44 KB )
  65. /yingpanguazai/ssd/ssd1/www/b.mffb.com.cn/vendor/topthink/think-orm/src/model/concern/DbConnect.php ( 5.16 KB )
  66. /yingpanguazai/ssd/ssd1/www/b.mffb.com.cn/vendor/topthink/think-orm/src/model/concern/ModelEvent.php ( 2.33 KB )
  67. /yingpanguazai/ssd/ssd1/www/b.mffb.com.cn/vendor/topthink/think-orm/src/model/concern/RelationShip.php ( 28.29 KB )
  68. /yingpanguazai/ssd/ssd1/www/b.mffb.com.cn/vendor/topthink/think-helper/src/contract/Arrayable.php ( 0.09 KB )
  69. /yingpanguazai/ssd/ssd1/www/b.mffb.com.cn/vendor/topthink/think-helper/src/contract/Jsonable.php ( 0.13 KB )
  70. /yingpanguazai/ssd/ssd1/www/b.mffb.com.cn/vendor/topthink/think-orm/src/model/contract/Modelable.php ( 0.09 KB )
  71. /yingpanguazai/ssd/ssd1/www/b.mffb.com.cn/vendor/topthink/framework/src/think/Db.php ( 2.88 KB )
  72. /yingpanguazai/ssd/ssd1/www/b.mffb.com.cn/vendor/topthink/think-orm/src/DbManager.php ( 8.52 KB )
  73. /yingpanguazai/ssd/ssd1/www/b.mffb.com.cn/vendor/topthink/framework/src/think/Log.php ( 6.28 KB )
  74. /yingpanguazai/ssd/ssd1/www/b.mffb.com.cn/vendor/topthink/framework/src/think/Manager.php ( 3.92 KB )
  75. /yingpanguazai/ssd/ssd1/www/b.mffb.com.cn/vendor/psr/log/src/LoggerTrait.php ( 2.69 KB )
  76. /yingpanguazai/ssd/ssd1/www/b.mffb.com.cn/vendor/psr/log/src/LoggerInterface.php ( 2.71 KB )
  77. /yingpanguazai/ssd/ssd1/www/b.mffb.com.cn/vendor/topthink/framework/src/think/Cache.php ( 4.92 KB )
  78. /yingpanguazai/ssd/ssd1/www/b.mffb.com.cn/vendor/psr/simple-cache/src/CacheInterface.php ( 4.71 KB )
  79. /yingpanguazai/ssd/ssd1/www/b.mffb.com.cn/vendor/topthink/think-helper/src/helper/Arr.php ( 16.63 KB )
  80. /yingpanguazai/ssd/ssd1/www/b.mffb.com.cn/vendor/topthink/framework/src/think/cache/driver/File.php ( 7.84 KB )
  81. /yingpanguazai/ssd/ssd1/www/b.mffb.com.cn/vendor/topthink/framework/src/think/cache/Driver.php ( 9.03 KB )
  82. /yingpanguazai/ssd/ssd1/www/b.mffb.com.cn/vendor/topthink/framework/src/think/contract/CacheHandlerInterface.php ( 1.99 KB )
  83. /yingpanguazai/ssd/ssd1/www/b.mffb.com.cn/app/Request.php ( 0.09 KB )
  84. /yingpanguazai/ssd/ssd1/www/b.mffb.com.cn/vendor/topthink/framework/src/think/Request.php ( 55.78 KB )
  85. /yingpanguazai/ssd/ssd1/www/b.mffb.com.cn/app/middleware.php ( 0.25 KB )
  86. /yingpanguazai/ssd/ssd1/www/b.mffb.com.cn/vendor/topthink/framework/src/think/Pipeline.php ( 2.61 KB )
  87. /yingpanguazai/ssd/ssd1/www/b.mffb.com.cn/vendor/topthink/think-trace/src/TraceDebug.php ( 3.40 KB )
  88. /yingpanguazai/ssd/ssd1/www/b.mffb.com.cn/vendor/topthink/framework/src/think/middleware/SessionInit.php ( 1.94 KB )
  89. /yingpanguazai/ssd/ssd1/www/b.mffb.com.cn/vendor/topthink/framework/src/think/Session.php ( 1.80 KB )
  90. /yingpanguazai/ssd/ssd1/www/b.mffb.com.cn/vendor/topthink/framework/src/think/session/driver/File.php ( 6.27 KB )
  91. /yingpanguazai/ssd/ssd1/www/b.mffb.com.cn/vendor/topthink/framework/src/think/contract/SessionHandlerInterface.php ( 0.87 KB )
  92. /yingpanguazai/ssd/ssd1/www/b.mffb.com.cn/vendor/topthink/framework/src/think/session/Store.php ( 7.12 KB )
  93. /yingpanguazai/ssd/ssd1/www/b.mffb.com.cn/vendor/topthink/framework/src/think/Route.php ( 23.73 KB )
  94. /yingpanguazai/ssd/ssd1/www/b.mffb.com.cn/vendor/topthink/framework/src/think/route/RuleName.php ( 5.75 KB )
  95. /yingpanguazai/ssd/ssd1/www/b.mffb.com.cn/vendor/topthink/framework/src/think/route/Domain.php ( 2.53 KB )
  96. /yingpanguazai/ssd/ssd1/www/b.mffb.com.cn/vendor/topthink/framework/src/think/route/RuleGroup.php ( 22.43 KB )
  97. /yingpanguazai/ssd/ssd1/www/b.mffb.com.cn/vendor/topthink/framework/src/think/route/Rule.php ( 26.95 KB )
  98. /yingpanguazai/ssd/ssd1/www/b.mffb.com.cn/vendor/topthink/framework/src/think/route/RuleItem.php ( 9.78 KB )
  99. /yingpanguazai/ssd/ssd1/www/b.mffb.com.cn/route/app.php ( 1.72 KB )
  100. /yingpanguazai/ssd/ssd1/www/b.mffb.com.cn/vendor/topthink/framework/src/think/facade/Route.php ( 4.70 KB )
  101. /yingpanguazai/ssd/ssd1/www/b.mffb.com.cn/vendor/topthink/framework/src/think/route/dispatch/Controller.php ( 4.74 KB )
  102. /yingpanguazai/ssd/ssd1/www/b.mffb.com.cn/vendor/topthink/framework/src/think/route/Dispatch.php ( 10.44 KB )
  103. /yingpanguazai/ssd/ssd1/www/b.mffb.com.cn/app/controller/Index.php ( 4.81 KB )
  104. /yingpanguazai/ssd/ssd1/www/b.mffb.com.cn/app/BaseController.php ( 2.05 KB )
  105. /yingpanguazai/ssd/ssd1/www/b.mffb.com.cn/vendor/topthink/think-orm/src/facade/Db.php ( 0.93 KB )
  106. /yingpanguazai/ssd/ssd1/www/b.mffb.com.cn/vendor/topthink/think-orm/src/db/connector/Mysql.php ( 5.44 KB )
  107. /yingpanguazai/ssd/ssd1/www/b.mffb.com.cn/vendor/topthink/think-orm/src/db/PDOConnection.php ( 52.47 KB )
  108. /yingpanguazai/ssd/ssd1/www/b.mffb.com.cn/vendor/topthink/think-orm/src/db/Connection.php ( 8.39 KB )
  109. /yingpanguazai/ssd/ssd1/www/b.mffb.com.cn/vendor/topthink/think-orm/src/db/ConnectionInterface.php ( 4.57 KB )
  110. /yingpanguazai/ssd/ssd1/www/b.mffb.com.cn/vendor/topthink/think-orm/src/db/builder/Mysql.php ( 16.58 KB )
  111. /yingpanguazai/ssd/ssd1/www/b.mffb.com.cn/vendor/topthink/think-orm/src/db/Builder.php ( 24.06 KB )
  112. /yingpanguazai/ssd/ssd1/www/b.mffb.com.cn/vendor/topthink/think-orm/src/db/BaseBuilder.php ( 27.50 KB )
  113. /yingpanguazai/ssd/ssd1/www/b.mffb.com.cn/vendor/topthink/think-orm/src/db/Query.php ( 15.71 KB )
  114. /yingpanguazai/ssd/ssd1/www/b.mffb.com.cn/vendor/topthink/think-orm/src/db/BaseQuery.php ( 45.13 KB )
  115. /yingpanguazai/ssd/ssd1/www/b.mffb.com.cn/vendor/topthink/think-orm/src/db/concern/TimeFieldQuery.php ( 7.43 KB )
  116. /yingpanguazai/ssd/ssd1/www/b.mffb.com.cn/vendor/topthink/think-orm/src/db/concern/AggregateQuery.php ( 3.26 KB )
  117. /yingpanguazai/ssd/ssd1/www/b.mffb.com.cn/vendor/topthink/think-orm/src/db/concern/ModelRelationQuery.php ( 20.07 KB )
  118. /yingpanguazai/ssd/ssd1/www/b.mffb.com.cn/vendor/topthink/think-orm/src/db/concern/ParamsBind.php ( 3.66 KB )
  119. /yingpanguazai/ssd/ssd1/www/b.mffb.com.cn/vendor/topthink/think-orm/src/db/concern/ResultOperation.php ( 7.01 KB )
  120. /yingpanguazai/ssd/ssd1/www/b.mffb.com.cn/vendor/topthink/think-orm/src/db/concern/WhereQuery.php ( 19.37 KB )
  121. /yingpanguazai/ssd/ssd1/www/b.mffb.com.cn/vendor/topthink/think-orm/src/db/concern/JoinAndViewQuery.php ( 7.11 KB )
  122. /yingpanguazai/ssd/ssd1/www/b.mffb.com.cn/vendor/topthink/think-orm/src/db/concern/TableFieldInfo.php ( 2.63 KB )
  123. /yingpanguazai/ssd/ssd1/www/b.mffb.com.cn/vendor/topthink/think-orm/src/db/concern/Transaction.php ( 2.77 KB )
  124. /yingpanguazai/ssd/ssd1/www/b.mffb.com.cn/vendor/topthink/framework/src/think/log/driver/File.php ( 5.96 KB )
  125. /yingpanguazai/ssd/ssd1/www/b.mffb.com.cn/vendor/topthink/framework/src/think/contract/LogHandlerInterface.php ( 0.86 KB )
  126. /yingpanguazai/ssd/ssd1/www/b.mffb.com.cn/vendor/topthink/framework/src/think/log/Channel.php ( 3.89 KB )
  127. /yingpanguazai/ssd/ssd1/www/b.mffb.com.cn/vendor/topthink/framework/src/think/event/LogRecord.php ( 1.02 KB )
  128. /yingpanguazai/ssd/ssd1/www/b.mffb.com.cn/vendor/topthink/think-helper/src/Collection.php ( 16.47 KB )
  129. /yingpanguazai/ssd/ssd1/www/b.mffb.com.cn/vendor/topthink/framework/src/think/facade/View.php ( 1.70 KB )
  130. /yingpanguazai/ssd/ssd1/www/b.mffb.com.cn/vendor/topthink/framework/src/think/View.php ( 4.39 KB )
  131. /yingpanguazai/ssd/ssd1/www/b.mffb.com.cn/vendor/topthink/framework/src/think/Response.php ( 8.81 KB )
  132. /yingpanguazai/ssd/ssd1/www/b.mffb.com.cn/vendor/topthink/framework/src/think/response/View.php ( 3.29 KB )
  133. /yingpanguazai/ssd/ssd1/www/b.mffb.com.cn/vendor/topthink/framework/src/think/Cookie.php ( 6.06 KB )
  134. /yingpanguazai/ssd/ssd1/www/b.mffb.com.cn/vendor/topthink/think-view/src/Think.php ( 8.38 KB )
  135. /yingpanguazai/ssd/ssd1/www/b.mffb.com.cn/vendor/topthink/framework/src/think/contract/TemplateHandlerInterface.php ( 1.60 KB )
  136. /yingpanguazai/ssd/ssd1/www/b.mffb.com.cn/vendor/topthink/think-template/src/Template.php ( 46.61 KB )
  137. /yingpanguazai/ssd/ssd1/www/b.mffb.com.cn/vendor/topthink/think-template/src/template/driver/File.php ( 2.41 KB )
  138. /yingpanguazai/ssd/ssd1/www/b.mffb.com.cn/vendor/topthink/think-template/src/template/contract/DriverInterface.php ( 0.86 KB )
  139. /yingpanguazai/ssd/ssd1/www/b.mffb.com.cn/runtime/temp/5111bd3ce6749a72e5b190c98fc708e0.php ( 11.98 KB )
  140. /yingpanguazai/ssd/ssd1/www/b.mffb.com.cn/vendor/topthink/think-trace/src/Html.php ( 4.42 KB )
  1. CONNECT:[ UseTime:0.000575s ] mysql:host=127.0.0.1;port=3306;dbname=b_mffb;charset=utf8mb4
  2. SHOW FULL COLUMNS FROM `fenlei` [ RunTime:0.000925s ]
  3. SELECT * FROM `fenlei` WHERE `fid` = 0 [ RunTime:0.015209s ]
  4. SELECT * FROM `fenlei` WHERE `fid` = 63 [ RunTime:0.020207s ]
  5. SHOW FULL COLUMNS FROM `set` [ RunTime:0.001227s ]
  6. SELECT * FROM `set` [ RunTime:0.000448s ]
  7. SHOW FULL COLUMNS FROM `article` [ RunTime:0.001093s ]
  8. SELECT * FROM `article` WHERE `id` = 477662 LIMIT 1 [ RunTime:0.000775s ]
  9. UPDATE `article` SET `lasttime` = 1778947890 WHERE `id` = 477662 [ RunTime:0.015803s ]
  10. SELECT * FROM `fenlei` WHERE `id` = 65 LIMIT 1 [ RunTime:0.071473s ]
  11. SELECT * FROM `article` WHERE `id` < 477662 ORDER BY `id` DESC LIMIT 1 [ RunTime:0.001653s ]
  12. SELECT * FROM `article` WHERE `id` > 477662 ORDER BY `id` ASC LIMIT 1 [ RunTime:0.000672s ]
  13. SELECT * FROM `article` WHERE `id` < 477662 ORDER BY `id` DESC LIMIT 10 [ RunTime:0.033883s ]
  14. SELECT * FROM `article` WHERE `id` < 477662 ORDER BY `id` DESC LIMIT 10,10 [ RunTime:0.024432s ]
  15. SELECT * FROM `article` WHERE `id` < 477662 ORDER BY `id` DESC LIMIT 20,10 [ RunTime:0.032153s ]
0.376376s